Unifamiliare Villa

Fano € 800.000,00
Contratto: vendita Rif: 724
Sei interessato a questo immobile?

Contattaci per maggiori informazioni

Telefono: (+39) 0721 807358
Caratteristiche
  • Tipo: Unifamiliare Villa
  • N° camere: 4
  • N° servizi: 2
  • Località: MONTEGIOVE
  • Zona: PERIFERIA
  • Giardino: privato - 0 m2

Descrizione

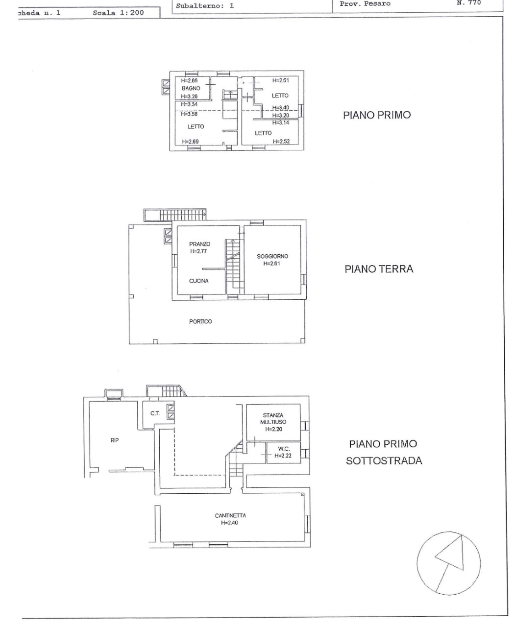
FANO: Monte Giove, sulla sommità della più alta collina del territorio del Comune di Fano, vendesi Villa di Campagna con vista sulla vallata del Metauro fino al Mare, completamente ricostruita nel '86, in ottimo stato, su tre livelli per un totale di mq. 275 circa; giardino piantumato di mq. 2.000 circa, campo da tennis, terreno agricolo di mq. 11.200 circa coltivato con alberi da frutto, circa 300 ulivi, dependance di mq. 70 circa, a mattoni con travi a vista, camino , completamente indipendente. PIANO TERRA: di mq. 70 circa, portico con meravigliosa vista panoramica di mq. 70 circa, grande soggiorno, sala pranzo, cucina con camino; PIANO PRIMO di mq. 70 circa, collegato con comoda scala in cotto, n. 2 camere matrimoniali, n. 1 camera singola, ampio bagno finestrato; PIANO SEMINTERRATO di mq. 135 circa composto da grande taverna, stanza letto/studio, bagno, lavanderia, cantina. Finiture buone, infissi in legno ben tenuti, impianto termo a gasolio, impianto di allarme, pozzo privato per orto. Per maggiori informazioni chiamare Ag. Immobiliare AZIMUT al 335 7809070





Desideri vendere o affittare una tua proprietà?