Unifamiliare Casa singola

Fano € 500.000,00
Contratto: vendita Rif: 310
Sei interessato a questo immobile?

Contattaci per maggiori informazioni

Telefono: (+39) 0721 807358
Caratteristiche
  • Tipo: Unifamiliare Casa singola
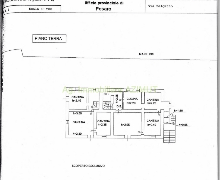
  • Superficie: 370 m2
  • N° camere: 5
  • N° servizi: 3
  • Località: BELGATTO
  • Zona: PERIFERIA

Descrizione

FANO: località BELGATTO: Villa di Campagna storica(1700), completamente da ristrutturare, su tre livelli, cion scala esterna, mq. 370 totali , lotto di mq. 5.000. Vista panoramica, a pochi minuti da l centro storico di Fano. Per maggiori informazioni chiamare al 335 78 09 070 Ag. Immobiliare AZIMUT





Desideri vendere o affittare una tua proprietà?