Schiera centrale

Terre Roveresche € 140.000,00
Contratto: vendita Rif: 682
Sei interessato a questo immobile?

Contattaci per maggiori informazioni

Telefono: (+39) 0721 807358
Caratteristiche
  • Tipo: Schiera centrale
  • N° camere: 4
  • N° servizi: 4
  • Zona: Orciano di Pesaro
  • Giardino: privato - 0 m2

Descrizione

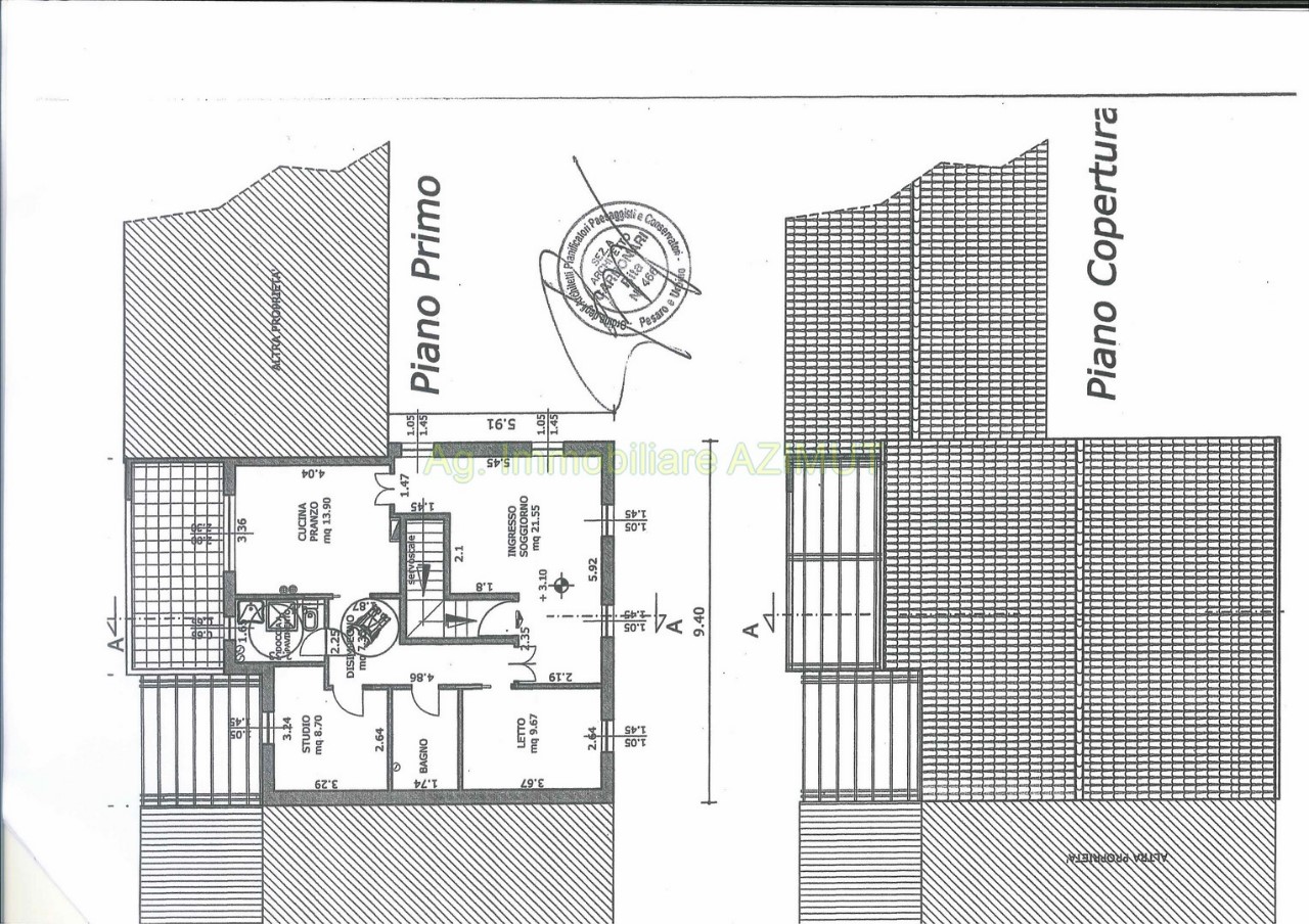
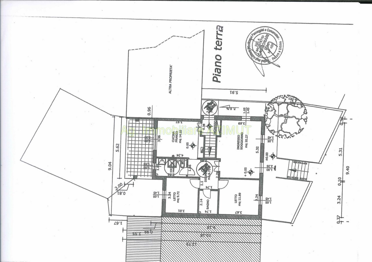
TERRE ROVERESCHE: a Orciano di Pesaro, paese dell'entroterra Marchigiano sulla sommità di un'ampia collina che si eleva tra le valli del fiume Metauro e del fiume Cesano, vendesi casa di fila al grezzo completamente ristrutturata, su due livelli, di mq. 100 circa a piano, con porticato al Piano Terra e ampio terrazzo al Piano Primo, scoperto esclusivo di mq. 140 circa. A km. 20 circa da Fano, vista panoramica, indipendenza e luogo tranquillo sono i punti di forza di questo immobile. Per maggiori informazioni chiamare Ag. Immobiliare AZIMUT al 335 7809070





Desideri vendere o affittare una tua proprietà?