Laboratorio

Fano € 700.000,00
Contratto: vendita Rif: 570
Sei interessato a questo immobile?

Contattaci per maggiori informazioni

Telefono: (+39) 0721 807358
Caratteristiche
  • Tipo: Laboratorio
  • Superficie: 1305 m2
  • Località: AEREOPORTO
  • Zona: LIMITROFA
  • Giardino: privato - 1000 m2

Descrizione

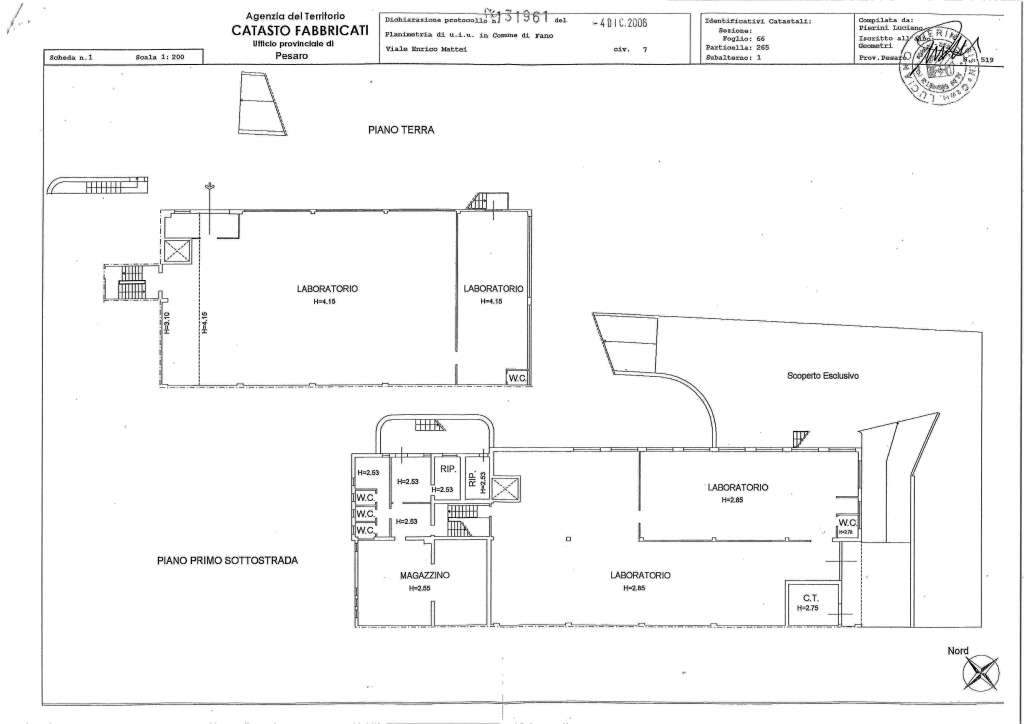
FANO: zona aereoporto, alto passaggio, vendesi capannone artigianale, abbinato, di mq. 1280 circa così composto: al Piano Terra laboratorio h.4.15 di mq. 430 circa, altro locale di mq. 155 h. 3.0, adibito a laboratori /ufficio, al Piano Interrato laboratori di mq. 430 circa h. 2.85 e magazzino/spogliatoii/bagni di mq. 155 h. 2.55; al Piano Primo appartamentodi mq. 112 circa con terrazzi per mq. 70 circa in buone condizioni, ben tenuto, abitabile. Completa la prorietà scoperto esclusivo di mq. 1.000 circa in parte piantumato a giardino, in parte adibito carico/scarico merce. Per maggiori informazioni chiamare Ag. Immobiliare Azimut al 335 7809070





Desideri vendere o affittare una tua proprietà?